Deli counter and taco bar
The Warehouse announces Urban Grocer market; Inked and Infused merges tattoos, tacos & tequila; make Filipino pork adobo with Baon and RFD; our adventures dining in L.A. + food & drink news & events

Just as Bread & Butter Neighborhood Market passes its five year anniversary, proving that the growing downtown corridor will support a local grocer, news dropped earlier this week of a second grocery store in the works.
The Warehouse announced plans for The Warehouse Urban Grocer, tentatively set to open around March, 2026 in the space that’s currently the gallery event room across from the restaurant’s entryway. That will continue to host gatherings until Dec. 31, then will go dark for necessary renovations.
Owner James Africano distinguishes his Urban Grocer as “chef-owned” and tells Side Dish in a recent sit-down convo that it will benefit significantly from being attached to a well-established restaurant. He commends his small but mighty culinary staff who will help prepare grab-and-go meals, and reflexively will benefit from cross-utilization of market goods. One example: sushi-grade fish that can sell in the market, hit the restaurant menu as a special, and lastly be turned into a frozen retail item if needed. Africano believes he can greatly reduce food waste that’s common to grocers and eateries. (Around 30 to 40 percent of food produced in the U.S. annually is wasted.)
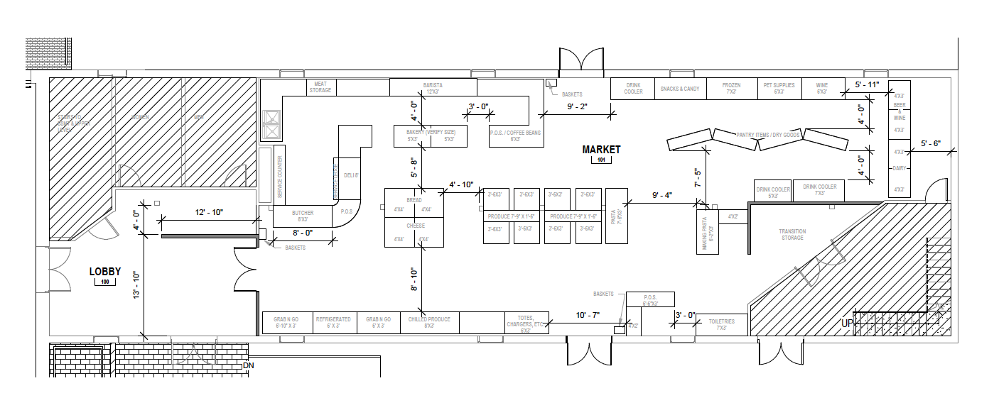
Urban Grocer will feature a full service deli and butcher plus seafood counter and plans to sell smartly curated cheeses, breads and pastry goods, produce, beer, wine and common household goods ranging from snacks and candy to pet supplies and dry ingredients. Local producers will be featured alongside goods produced in-house. Africano’s team will prepare their own meats for slicing at the market (ham, pastrami, roast beef, corned beef, turkey, etc.) “so it’s boutique, not just Boar’s Head,” he says, adding “we’ll grind beef and cut steaks.” For those, he’ll offer both a quality broadline product as well as local options like PBJ Cattle Co. grass-fed beef and yak.
They’ll also work through suppliers like Valley Roots Food Hub to procure area produce. He lists items like in-season fruits but also ciders and juices. He and his crew will also make homemade pastas and sauces, some of which have already been available at a tiny, existing retail display in The Warehouse’s foyer. Under the deli arm, Africano plans to assemble fresh sandwiches to order. He cites the model of Denver’s Marczyk Catering as a an inspiration for that.

As for the “why” behind this transition away from banquets and private parties to a multi-service grocery story, Africano tells me he’s been working on this idea in some form since 2018, “because I could see it coming.” The “it” initially was the announcement of Weidner Field’s development directly across the street, and he knew parking for large groups would become problematic once that parking lot went away.
Before the stadium opened in mid 2021, the Covid pandemic arrived with new challenges, and Africano watched his banquet revenue decline year-over-year, after having hit an all-time high in 2019. Despite a short-term rebound in 2022 with consumer revenge spending, the downward trends continued and in 2024 he says he was 40 percent below 2019’s numbers. “That barely pays the rent,” he says flatly.
The good news, though, is “the restaurant side is performing wonderfully,” he says. “But it can’t support that space.” To leave it alive could put the eatery at risk.


I ask Africano what the largest party size he’ll be able to facilitate once the Urban Grocer launches, and he says that his wine room seats up to 20, so that’s it. He’ll refer to other industry friends like The Carter Payne moving forward.
We can’t not talk about Bread & Butter for a moment, and Africano says he loves the owners (Stacy and Aubrey) and admires what they’ve created. He again distinguishes how features like his butcher, seafood counter and deli will be offerings not available there, so there’s a value-add to downtown shoppers. In his view, it was a matter of time until another grocer moved in: “Do we want it to be a Whole Foods,” he asks, “or someone else local, like us?”
He cites data from recent State of Downtown reports as he discusses a need for additional services to fill gaps as the city center grows. He notes he’s applying for a Downtown Development Authority (DDA) retail grant through the organization in hopes of getting financial assistance for items like coolers and culinary equipment. (Provision Bread & Bakery received a $50,000 retail incentive grant in 2023, as one example of other culinary businesses that have benefitted from the program.)
Make Filipino Pork Adobo with Ranch Foods Direct
Side Dish welcomes Chef Katie Fisco of Baon Supper Club for this month’s collaboration recipe with newsletter sponsor Ranch Foods Direct. I had the honor of cooking this fantastic Filipino Pork Adobo recipe with Katie in my home, utilizing arugula from my garden. (Baon does offer private chef and in-home dinner services.) You can use either pork shoulder or belly, and you may need to hit an import market for a couple of the Asian ingredients. But otherwise Ranch Foods Direct has you covered with the sustainably raised Callicrate pork. Mention Side Dish at the register for 5 percent off your whole basket at either Ranch Foods Direct retail market.
Inked and Infused adds tacos and tequila to tattoos
You’ve probably heard the name Rocky Ross locally, and perhaps seen him DJ somewhere around town. Check out his Rocky Ross Productions page and you’ll realize that he’s gone far from his humble C. Springs roots — literally around the world many times as a breakdancer and all-styles DJ. He lived in Asia for several years, at one point working as the trick DJ and announcer for the most watched show in Shanghai. Ross also worked with a list of celebs and electronic performance artists, and if all that’s not enough to entertain a man, he’s also a tattoo artist. A couple years ago, he purchased Old North End Tattoos from his childhood friend David Martinez. Now, he’s expanded out of that retail storefront (which is Bonnyville/Patty Jewett/Old North End adjacent) to create two additional entities — El Gringo’s Tacos and Tequila Chilladas Bar — under the wider banner of Inked and Infused.

Ross’ last name might also be familiar, as his brother Casey Ross co-owns Axe and The Oak Distillery and his other brother Clay Ross owns The Look Up Gallery and co-owns Yobel. (I ask him if there’s any other multitalented, entrepreneurial siblings the town needs to know about, and it and turns out this trio is it.)
“I grew up in the Old North End,” he tells me during a sit down chat at the taqueria last week. My parents, grandparents and great grandparents all grew up around here. They built homes in the area. It’s a cool neighborhood with unique establishments.” (That’s one way to quantify neighbors like the Lawn Mower Hospital and The Drive-In Tasty Freeze.) “Other than Stir, we need more cool things.”
Ross, now 43, with 26 years of tattooing and 29 years of DJ work behind him, says he experienced some culture shock after moving back after many years away, including a stint in L.A. where he started an event company. “Even though I grew up here, it took some time to ease back into the lifestyle here.” After some failed starts trying to launch his own venue here, he opted to buy the tattoo shop, which he’d been working at for three years by then. But he never quite shook the desire for something more. “I always wanted my own shop and bar,” he says. “It feels good to be opening in my home town and giving back in ways.”


He plans to DJ periodically at the front stage area he built out during a 10-month overhaul of the space, a former jewelry repair shop that had been vacant for upwards of a decade. He’ll also be bringing in prominent DJ pals for shows and aiming to build out music programming from Thursdays through Saturdays, to include salsa dancing and such. “I want to do themed, fun, cultural events,” he says.
As for the rest of the vibrant and colorful spaces (the connected taqueria and bar) — with old window shutters tacked to the ceiling, hanging fiber and pendant lights, retro-style bar stools at a funky custom counter, old boom boxes and random knickknack as decor and a shiny black floor that reflects everything — it hosts both a long front patio that connects all the businesses and a rear patio that overlooks the Shooks Run/Legacy Loop Trail. Ross has a name for that too: City Sippers Trail Garden and Walk-up Movie Theater. He plans to show projected movies.




Meanwhile, the rear patio is open for lounging next to a grill and smoker where his team does much of the cooking. There’s no hoods inside, just a grease trap, so they do countertop cooking with friers and toasters and tortilla warmers and such. The small opening menu features seven taco varieties; another seven starters ranging from green chile and nachos to elote and queso and chips; arroz con pollo and quesadilla larger plates, and fried ice cream and tres leches desserts. Soon, he aims to launch breakfast burritos and coffee service during morning hours. (They’re now open 11:30 a.m. to 2:30 p.m. weekdays and 4 p.m. to midnight Monday-Thursday; staying open until 2 a.m. Fridays-Saturdays and operating from 11:30 onward on Saturdays. Sundays closed.)


The bar didn’t have printed menus yet when I visited, during a grand opening party, so drinks were somewhat on-call. There’s a couple beer taps currently occupied by Modelo and Firestone Walker’s Cali Squeeze blood orange wheat. Ross says they’ll make you classic cocktails including whiskey drinks, not just tequila drinks, though an array of tequilas are coming. “We want to be known for tequila cocktails and Micheladas,” he says, adding they’re also working on infused coffee offerings. A bay of lockers behind the bar are for VIP members who wish to buy and store tequila bottles, similar to how District Elleven has a whiskey locker program.
Bites & Bits
• Felipe’s 109 Taco Burgers posted Sept. 1 to say they had closed their brick and mortar location at 3008 S. Academy Blvd. They cited everything from rising cost and past debt to the longtime construction in the area that affected sales — noting that phase two of South Academy work begins soon, and a car wash has purchased their property. They will, however, keep their food truck operational, and they were already out Sept. 3 for an open house event at the Salvation Army.
• Eleven 18 (a Side Dish Dozen member, along with Four by Brother Luck) announced on Aug. 30 that it was “evolving” away from à la carte dining to become an event space and focus on popup dinners, cooking classes, private events and catering. It begins a two-week run of an “Into Wonderland” theme Sept. 4 (which is already sold out), continuing Sept. 5, 6, 11 and 12. The former Studio spot upstairs is now available for lease, as is the bar side (former Tipperary space), which Luck is separating from Eleven 18 (the former Lucky Dumpling space).
I called Luck to ask about the pivot, and he was transparent in saying the decision came down to the fact that his overall model and layout wasn’t working for all the overhead — roughly 6,000 square feet, of which he was often only utilizing 2,500 square feet. “It’s a weird layout, with the bar so far from the kitchen. It can feel like two different spaces.” Dating back to his experience with Lucky Dumpling, he feels it’s a tough location, and that it’s time to “reorganize to survive … it wasn’t our service our food quality, and we had a phenomenal bar team.” As for the idea for popups and events, he says he’s had a lot of success with those in the past, so it makes sense to prioritize them. “I’ve been doing these for a long time, dating back to my Muppets and Bob Ross dinners back at Street Eats,” he says. “At the end of the day, they’re fun and I still have a really cool venue here, a great space for receptions, dinners and classes. That’s more how I see this space functioning.”
• New Denizen reports on 7 new restaurants & bars you should know about in and around Denver. Rougarou is “as close as the city gets to a cool-kids’ clubhouse” and Pig and Tiger is a Taiwanese spot that comes alive at night as “dim lighting casts a warm glow, creating unmistakably sexy vibes.” See what else is on the list and subscribe free to this worthwhile Substack newsletter.
• If you are seeking wine education opportunities for your service and culinary team, or are simply a wine enthusiast, The Blue Star events has partnered with Wine Education Institute in Westminster to offer Wine & Spirits Education Trust (WSET) certification courses at The Library at Ivywild School. WSET is one the most highly revered wine certification programs in the world. These courses haven’t been offered in the Springs in nearly a decade. They start with a WSET Level 1 Award in Wines. It’s a full-day immersive course and certification exam, 9 a.m. to 4 p.m., Oct. 11 ($350). The program includes: lectures from certified instructors, wine and food pairing exercises, guided wine tastings and a proctored, multiple choice exam. Pass with 70 percent and receive a Level 1 certificate/WSET pin. Limited to 20 people.
Side Dish Dozen happenings
Elephant Thai and Chaang Thai, sister outfits along N. Academy Boulevard, have joined the Side Dish Dozen! Save the date for a Sip with Schnip at Elephant Thai, Sept. 17; details soon. Both eateries serve traditional Thai dishes, Bangkok-inspired, with ample vegetarian, vegan and gluten-free options.
The Chuckwagon 719: Come for our Brisquites Tacos, which have been a huge hit! We’re still serving smoked ribeyes on the weekends. And catch smoked salmon specials on Sundays. Also, have you tried our epic smoked brisket burger, for only $7.50? All our meats are slow-smoked by us daily and sliced to order.
Red Gravy: Come enjoy the Tejon Street glow-up from our patio. We offer walk-in seating at our bar and at Blue at Red Gravy in back, if you don’t have a reso. Our bartenders make great cocktails. Enjoy happy hours from 4-6 p.m., weekdays.
Bristol Brewing Company: If you dig a malty sweet, low-ABV beer, grab a pint of our limited edition London Brown Ale at the brewery or on draft around town. An early 1900s Southern-British style, this beer won a silver medal at the Colorado Brewers Cup in January! Also, our free outdoor movie series, Movies Under the Stars, starts this Saturday the 6th, with The Sandlot at 7:30 p.m. then Shrek on the 13th.
T-Byrd’s Tacos & Tequila: Make any taco a bowl or burrito on our new menu. We also added a Fiesta Cobb Salad and seasonal market salad, and have brought back our popular Nada Asada portobello mushroom taco (vegan flexible). Save room for passionfruit-cheesecake stuffed sopapillas for dessert!
Rasta Pasta: Come for Mix Tape Music Bingo every Monday, 7-9 p.m. Listen to music, play bingo, win prizes! Lunch Specials daily until 3 p.m. Same great flavor, smaller portion, smaller price. Kids eat free every Monday.
Upcoming events
Sept. 6: Popsicle Promenade in downtown Colorado Springs. 2-5 p.m.; $10.
Sept. 6: Distillery 291 14th Anniversary Party. Noon to midnight. Live music, cigar pairings, food and early access to the XIV Colorado Whiskey release.
Sept. 6: Stein Holding Competition at Goat Patch Brewing Co. 1-5 p.m.; free. This is the qualifying round for the U.S. Steinholding Association. (Also, on Sept. 13 at Pikes Peak Brewing Company, another qualifying round will be held at the same hours.)
Sept. 7: Volunteer Day at Flying Pig Farm. 10 a.m. to 1 p.m. Help construct the new high tunnel hoop house.
Sept. 7: Makers Market at Red Leg Brewing Co. 11 a.m. to 3 p.m.
Sept. 8-13: Sober Week for Hospitality and Restaurant Workers. Daily activities include yoga, a group hike, coffee and donuts, volunteerism, a field day competition of industry skills, and the Sober Soiree dance party on Sept. 13. Click here for more.


Sept. 13: Holes & Hops Cornhole & Brewfest Fundraiser at Weidner Field. 2-6 p.m.; benefits Colorado Youth Outdoors.
Sept. 14: Hillside Garlic Festival at Hillside Gardens, 9 a.m. to 2 p.m.
Sept. 17: Sip with Schnip at Elephant Thai. Details soon.
Sept. 19-21: Pueblo Chile & Frijole Festival.
Sept. 19: Angelo Cellars Winemaker Dinner at The Carter Payne. 6 p.m.; six courses.
Sept. 20: Korean Festival Colorado at Acacia Park. Traditional food, K-pop performances, cultural games and local artists and vendors. 11 a.m. to 6 p.m.; free.
Sept. 20: Autumn Festival at Palmer Lake’s Three Farm Girls. 10 a.m. to 2 p.m.; free. Local artisans, live music and family activities.
Early warning: Tails, Tunes & Tastes, Sept. 25. Blues on the Mesa, Sept. 27.
Parting shot(s)
A couple weekends ago we made a quick trip to Los Angeles to visit several old friends around the area: a chef/entrepreneur with Springs roots; a couple who are super foodie college pals of mine; another dear couple that made us the perfect after-flight home-cooked meal; and Lauren’s social media sister (of sorts) that took us and her kids into Koreatown for adventures. Here are just some of the highlights (read the captions for descriptions):
• Dumplings and more at Din Tai Fung.




• Fun Asian pastries at the Santa Anita mall.




• Burritos at Michelin-awarded Burritos La Palma - home to phenomenally good, legit award-winning tortillas.

• Outstanding coffee drinks at Kumquat Coffee.


• Donuts at Donut Friend.


• Hainan Chicken and Rice at Cluck2Go.



• Korean barbecue at Michelin-rated Parks BBQ.






• So many fun matcha, coffee and tea drinks elsewhere in Koreatown.




• Cocktails at Momed.











FINALLY the answer to the construction up by Tasty Freeze (and right next door to my beloved hair salon/vintage boutique that everyone should visit)! We live right down the street, we love tacos, I’ve been wanting more ink, and I’ll throw back micheladas like it’s my job. SO EXCITED. We’ll walk there all the time!! Hopefully we can go try it tomorrow 🙂 (No offense to Stir, which we love, but Inked and Infused will shake things up in a good way)